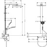
Душевая система Hansgrohe Raindance E 27363000
Код товара: 628-972-500Душевая система Hansgrohe Raindance E 300 1jet Showerpipe 600 ST 27363000 с термостатическим смесителем.
Лаконичный стиль и современное исполнение из надежных материалов: анодированный алюминий с хромированным покрытием.
Верхний душ увеличенного размера Raindance E 300 1jet Showerpipe 600 ST.
- Технология AirPower, благодаря смешивания потока воды с воздухом, значительно способствует экономии расхода воды.
- Избавиться от известковых отложений в одно прикосновение легко, благодаря технологии QuickClean.
- XXL Performance: увеличенный размер душевого диска как никогда ранее доставит неописуемое наслаждение и расслабление от принятия душа. Помимо гладкого массажа, каждый участок тела обильно омывается мощной и гладкой струей воды.
- RainAir - сильный и мягкий поток воды, напоминающий прогулку под летним дождем.
- Полностью хромированный душевой диск.
- Регулируемый наклон верхнего душа.
- Легкое снятие для удобства очистки.
- Расход воды: 16 л/мин.
- Стандарт подключения: G1/2.
- Размер: 30x30 см.
Ручной душ Raindance Select S 120 3jet 26530000.
- Три режима:
- RainAir: нежный поток воды из насыщенных воздухом капель.
- Rain: бодрый напор воды, который идеально подходит для утреннегx душа и мытья волос.
- WhirlAir: концентрированный душ, который прекрасно разогреет тело и снимет напряжение с уставших мышц.
- Нажатие кнопки Select в один щелчок пальца меняет мощность струи воды от мягкой до интенсивной.
- QuickClean: технология быстрого и эффективного избавления от известкового налета легко предупреждает значительные отложения водного камня.
- Регулировка наклона на 90 градусов. Свободное вращение держателя душевой лейки влево, вправо, вверх, вниз.
- Диаметр душевого диска: 12.5 см.
- Расход воды: 15 л/мин.
Душевой шланг Isiflex 28276000:
- Пластмассовая оболочка для легкого ухода.
- Металлическое покрытие.
- Шланг защищен от перекручивания и излома.
- Длина: 160 см.
Термостатический смеситель ShowerTablet 600:
- Защиту от перегрева гарантирует встроенный ограничитель температуры, который предотвращает нагрев выше 40 градусов по Цельсию.
- Встроенная полочка из безопасного стекла. Покрытие: анодированный алюминий.
- Расход воды: 28 л/мин.
В комплекте поставки: душевая система.
| Производитель | Hansgrohe |
| Код товара | 62545 |
| Бренд | Hansgrohe |
| Коллекция | Raindance E |
| Страна | Германия |
| Варианты цвета | Хром |
| Другое название | Хансгрохе Рэиндэнс Е |
| Материал | Анодированный алюминий |
| Артикул | 27363000 |
| Ширина,мм | 405 |
| Высота,мм | 1066 |
| Длина,мм | 555 |
| Глубина,мм | 405 |
| Тип изделия | Без излива |
| Функции | С термостатом |
| Форма верхнего душа | С квадратным верхним душем |
| Цвет | Хром |
Отзывы
Оставьте отзыв об этом товаре первым!
Теги:











